2, 2.5 and 3 BHK Apartments near Technopark - Heather Ferns
| Status | Completed |
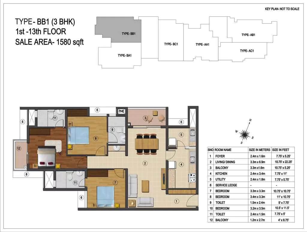
| Apartment Types | Ready To Occupy - 2, 2.5 and 3 BHK |
| Floors | G + 14 |
| Location | Kazhakkoottam, Thiruvanathapuram |
| RERA Number | K-RERA/PRJ/240/2020 |

Download Brochure
Heather Ferns
Download Brochure
Overview
Apartments near Technopark, Nearby Infosys, minutes from the UST campus, just off the 6-laned national highway. Yes, you did hear it right! We have heard your call for a quality living space in the bustling, ever-growing IT corridor of Trivandrum, Kazhakkoottam. With Ferns, Heather homes is bringing flats near technopark with luxury lifestyle options to those of you who are rearing to take advantage of the strategic location privileges, Ferns bring with it! Apartments at Ferns await in 2,3 and 4 BHK variants, ranging from 1200 sq. ft to 3300 sq. ft in multiple layouts for you to choose from. Enrich your day to day life imbibing on the calm, serene and picturesque landscape on which Ferns stand tall and proud! Ferns take initiative in bringing exquisite lifestyle amenities, which hitherto could only be enjoyed by the super-rich, by offering them at really affordable prices be it Swimming pools, Health Clubs, Indoor recreation areas, Multipurpose hall, Children’s play area, or the party area atop the fourteenth floor.
Amenities
Project Amenities












Structure
- Deep pile foundation complying with seismic 3 zone as perstructural consultant’s advice.
- RCC frame structure with brickwork and or concrete block partitions. Concrete grade and Steel grade as per structural consultant’s advice.
Flooring & Tiling
- Main entrance lobby shall be finished using Granite / Vitrified tile and texture finish combination as per the architect’s design.
- Lift lobby and fascia wall & floor using Vitrified tiles, as per the architect’s design.
- Staircases using Granite / Vitrified tile flooring with hand railing using SS Brush finished and paint finished MS sections for fire staircase.
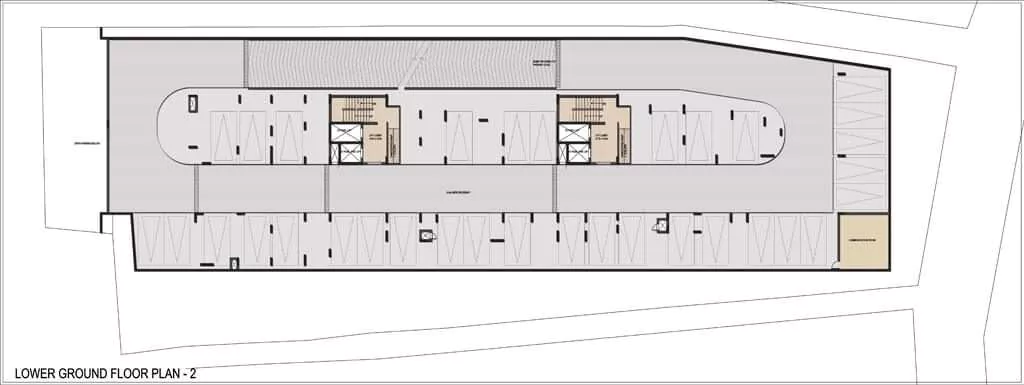
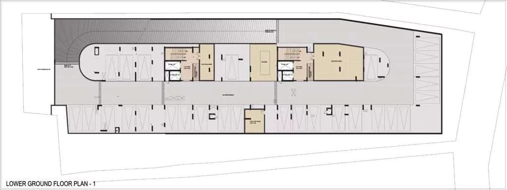
- Car park Area: Cement based Flooring with grooves and exterior grade paving tiles for the setbacks and driveways.
- Foyer / Living/ Dining / 80 X 80 Vitrified tiles. Bedrooms Rooms and Kitchen using 60cm X 60cm Vitrified tiles(make SIMPOLO, KAJARIA, SOMANY).
- Toilets: Designer ceramic tile concepts 30cm X 30cm for floor and 30cm X 45cm for walls up to ceiling height(make SIMPOLO, KAJARIA, SOMANY).
- Utility Room: 30cm X 30cm ceramic tile for floor and 30cm X 45cm for walls up to 140 cms height and 60cm above the counter if any.
- Balconies / Open Terraces / Decks / Private Terraces : Rustic / antiskid / ceramic tiles 30cm X 30cm(make SIMPOLO, KAJARIA, SOMANY).
- Wash / Kitchen counters: Using 16mm granite counter.
- Handrails and Railings: Using SS / MS / Toughened glass as per the architects design.
Sanitary & Plumbing
- Sanitary fittings: EWC wall-hung, counter wash basin. All sanitary fittings shall be of DURAVIT / VITRA. Concealed cisterns of GEBRIT / GROHE make with chrome plated actuator plates and all sanitary shall be of white color only.
- Bathroom Faucets: Shall be single lever concealed diverters CP finish, heavy body metal fittings of GROHE / VITRA. Provision for hot water connection shall be provided for overhead shower in each bathroom. Health faucet also shall be provided.
- Plumbing: All concealed water supply lines shall be in ISI marked ASTM pipes. Drainage, all other lines and storm water drain pipes shall be in PVC.
- Kitchen & Service area: Wall mounted Faucets / taps using GROHE / VITRA shall be provided.
- Stainless Steel Sink single bowl with drain board of make NIRALI / FRANKE shall be provided for the kitchen and stainless steel sink without drain board shall be provided for the utility and service areas.
- Cockroach traps shall be provided as gratings for all the necessary locations (make CHILLI / VIKING / OMCO ).
Doors & Windows
- Window shutters: Prefabricated colour anodized aluminium sliding shutter windows. One pane of insect screen also shall be provided. Aluminium extrusions shall be from JINDAL / INDAL make
- Door Frames: Main door frame and shutter shall be of seasoned teak wood. Outer and Inner face shall be coated with Polyurethane finish.
- Door Shutters: All internal door frames shall be of seasoned hard wood with GREEN / ELEGANT / USHUS branded flush door shutter. All internal and external faces shall be finished with Synthetic enamel paint.
- Hardware: All hardware shall be in C.P Brass, tower bolts, door stoppers, ball bearing hinges. Locks shall be mortise of DORSET / YALE / GODREJ make.
- Entrance door of the apartment shall have hardware such as, Magic eye, Safety chain, Door stopper.
Electrical
- Concealed copper wiring using FINOLEX / RR / HAVELLS make with modular plate switches, centralized cabling system for all electrical and communication requirements.
- Wiring shall be done for lighting, 5Amps, 15 Amps and AC points in the Apartment.
- Switches: All switches shall be LEGRAND (MYRIUS) / SCHNEIDER / HAGER.
- Generator: Power backup will be provided for all common services and selected light and fan point in each living, bedrooms inside apartment and a refrigerator point in Kitchen. One light point in each toilets, one 5 Amp plug point in the Living room shall be provided for emergency recharging of any devices. However this shall be 800 Watts for 2BHK and 1200 Watts for the 3BHK apartments with limiter control system.
- Light fixtures for the Common areas, external areas, apartment balconies and above the entrance door of the individual apartments shall be provided as standard. All light fixtures shall be of PHILIPS / WIPRO / HAVELLS.
- Adequate ELCB and MCB shall be provided in each apartment. Make SCHNEIDER / LEGRAND / ABB.
- Provision for the GEYSER points and fresh air fans shall be provided for all toilets.
- Provision for telephone and Internet shall be provided in the living room and master bed room.
- Provision for Cable TV / DTH shall be provided in the living and Master Bedroom.
Ceiling Treatment
- OBD paint shall be applied in the utility and service areas.
- Emulsion shall be applied for the ceiling in the apartment excluding Utility & Services.
Wall treatment
- Internal Walls: Premium emulsion paint applied over cement based putty shall be used for the ceiling and the internal walls of the apartment.
- Service area – Emulsion paint / Textured finish as per the Architect’s design.
- External Walls: External walls shall be plastered with double coat 18 mm cement plastering & Weather shield exterior grade emulsion / textured paint as per the Architect’s design (all paint products from ASIAN / BERGER / JOTUN .
Elevators
- Elevators: Elevators shall be provided as per the Govt. norms in each core with automatic doors & SS brush finish of KONE / SCHINDLER / JOHNSON..
- Automatic Rescue Device (ARD) also shall be provided as an additional premium feature.
Air Conditioning
- Provision for Split ACs, shall be provided for all bedrooms.
Landscaping
- Well-designed Landscape area around the building.
- Provision for sprinklers and drip irrigation (ATS) shall be provided in essential area in landscaping.
- Interlock Pavers to be laid in driveways and walkways.
- Hard and soft landscaping shall be provided as per the landscape consultant’s design.
Work Progress
Apartments at Ferns await in 2,3 and 4 BHK variants, ranging from 1200 sq. ft to 3300 sq. ft in multiple layouts for you to choose from. Enrich your day to day life imbibing on the calm, serene and picturesque landscape on which Ferns stand tall and proud! Ferns take initiative in bringing exquisite lifestyle amenities,













Let’s Talk!
Reach out to us anytime for personalized guidance, expert advice, and solutions designed to help you achieve your goals quickly and efficiently.




